70 Nubeena Road, Taranna, TAS, 7180

70 Nubeena Road, Taranna, TAS, 7180

Sold

Warm Timber Home with Bay Views and Acreage

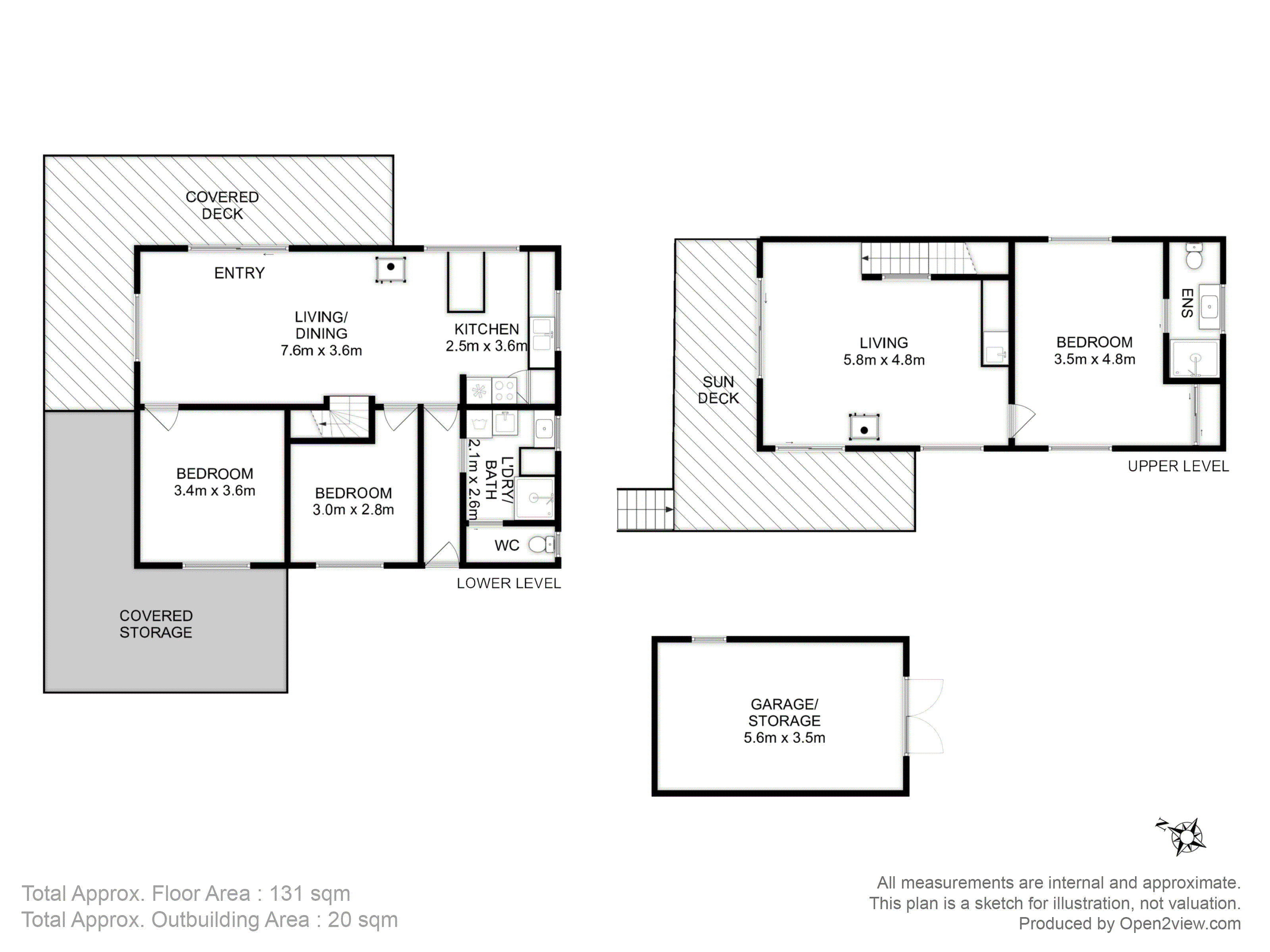
Set privately amongst nature at the beginning of Sympathy Point, this two storey timber and iron-clad home offers space, serenity, and an enviable connection to Tasmania's wild beauty. Warm and inviting, the ground floor features open-plan living with timber cathedral ceilings, a freestanding wood fire, and an easy flow to a covered verandah overlooking the landscape. The kitchen is practical and filled with light, perfectly positioned for entertaining or enjoying quiet moments with a view. Two bedrooms, a combined bathroom and laundry, and a separate toilet complete this level. Upstairs, the spacious retreat style main bedroom includes an ensuite and built-in robe, alongside a second living area with its own wood heater and direct access to a sun deck, the ideal spot to take in the surrounding peace, water views and natural light. The property spans approximately 43 acres, with around 10 cleared and the remainder beautifully timbered. The south eastern boundary adjoins an extensive waterfront reserve with views over Little Norfolk Bay, where protected waters invite canoeing and easy access to the foreshore. Native flora and fauna thrive here, from blue wrens and wedge-tailed eagles to sea eagles that soar in from the neighbouring habitats. A small year-round waterhole enhances the tranquil setting. Perfectly suited to a range of pursuits, the fertile soil is ideal for growing proteas, daffodils, and more, while a natural stand of tea trees offers opportunity for beekeeping. A separate shed houses tools, yard equipment, a ride-on mower, and tractor that will be included in the sale. Located just 5 minutes from the Taranna boat ramp, approx 15 minutes from Eaglehawk Neck and Fortescue Bay (the finish line of the world renowned Three Capes Track). Approximately 1 hour and 15 minutes from Hobart, this property delivers the best of Tasman Peninsula living. Private, peaceful, and effortlessly connected. Walk-in, walk-out sale preferred (excluding personal items). Kate Storey Realty has obtained all information in this document from sources considered to be reliable, however we cannot guarantee its accuracy. Accordingly, all interested parties should make their own enquiries to verify this information. All measurements are approximate only.
$730,000
32
TypeResidential
Building Size131.00 Square Metre
Land Size43.00 Acre
Council Rates$2400 yearly